NEW 一戸建て

リナージュ川西市水明台1丁目01期

4,180万円

  • システムキッチン
  • 対面式キッチン
  • 食器洗機
  • パントリー
  • 洗浄便座
資料請求する

TEL 0120-919-679

アイディホーム株式会社本社
営業時間/9:30~18:30

-のスライド画像
-
価格
4,180万円
月々の返済をローンシミュレーションで調べる
所在地
兵庫県川西市水明台1丁目7番5(地番)
最寄駅
能勢電鉄 平野駅までバス12分「水明台1丁目」停徒歩2分
総棟数
1棟
販売棟数
1棟
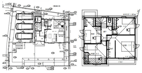
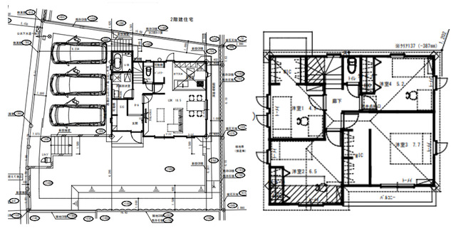
間取り
4LDK
土地面積
249.13m²
建物面積
108.06m²
完成予定時期
2026年07月
引渡可能時期
2026年07月下旬

情報更新日:2026/04/28

資料請求する

TEL 0120-919-679

アイディホーム株式会社本社
営業時間/9:30~18:30

間取り・図面

外観・内観

周辺情報

  • 地図はデータ作成時点のものであり、現状と異なる場合がございます。
  • 地図に表示されるアイコンは付近住所を示すものであり、実際の物件所在地とは異なる場合がございますので、詳細情報に関しましては、各物件のお問い合わせ先までご連絡ください。

物件概要

価格
4,180万円
月々の返済をローンシミュレーションで調べる
所在地
兵庫県川西市水明台1丁目7番5(地番)
最寄駅
能勢電鉄 平野駅までバス12分「水明台1丁目」停徒歩2分
総棟数
1棟
販売棟数
1棟
間取り
4LDK
土地面積
249.13m²
建物面積
108.06m²
完成予定時期
2026年07月
引渡可能時期
2026年07月下旬
最多価格帯
-
構造・階数
木造 地上2階建
都市計画行区域
市街化区域
用途地域
第一種低層住居専用地域
建ぺい率
50%
容積率
80%
建築確認番号
第KS125-0420-58698号
私道負担
-
築年月
2026年07月完成予定
地目
宅地
道路幅員
1号棟 西:6.3m
分譲後の権利形態
所有権
設備
建設住宅性能評価取得(予定含む)
ガス:都市ガス 水道:公営水道 汚水:公共下水システムキッチン 対面式キッチン 食器洗機 パントリー 洗浄便座 トイレ2か所 バス1坪以上 モニター付きインターホン 人感センサーライト ディンプルキー 複層ガラス 各室収納スペース ウォークインクローゼット 床下収納 シューズクローク 24時間換気システム シックハウス対策 火災警報器(報知器) LDK15帖以上 フローリング バルコニー 耐震構造 低層住居専用地域 全面道路5m以上 省エネ・エコ住宅 外壁サイディング 設計住宅性能評価取得 給湯 シャッター雨戸 3口以上コンロ
制限事項
1号棟:【法令】景観法 宅地造成工事規制区域 敷地内段差有【その他制限事項】法22条区域 外壁後退1m 絶対高さ制限10m 多田グリーンハイツ水明台地区地区計画 最低敷地面積165平米 敷地内新設擁壁有り
取引形態
売主
初回公開日
2026/04/25
情報更新日
2026/04/28
次回更新予定日
2026/05/12
取引有効期限
2026/05/01
お問い合わせ先
アイディホーム株式会社
明石店
0120-919-679
兵庫県明石市山下町6-11 T・Court・Akashi1階
宅地建物取引業免許 国土交通大臣(1)第10334号
売主・事業主
アイディホーム株式会社
(公社)全日本不動産協会 兵庫県本部
(公社)近畿地区不動産公正取引協議会
(一社)全国住宅産業協会
注意事項
  • 価格は物件の代金総額を表示しており、消費税が課税される場合は税込み価格です。
  • 特に注記がない場合、写真、パース(絵)に掲載されている家具や車などは、販売価格に含まれません。
  • 完成予想図はいずれも外構、植栽、外観など実際のものとは多少異なることがあります。
  • 販売戸数が複数の物件につきましては、物件の特徴が必ずしも全ての住戸に該当しない場合があります。
  • 建築条件付き土地価格には、建物価格は含まれません。
  • 建築条件付き土地とは、その土地に建築する建物について一定期間内に建築請負契約が成立することを条件として売買される土地のことをいいます。
  • 徒歩による所要時間は、道路距離80mにつき1分間を要するものとして算出した数値を表示しています。1分未満の端数が生じた場合は、1分として繰上げ算出しています。
  • 「間取」中の「S」の表示は「納戸(サービスルーム)」を意味しています。

資料請求

  • 入力
  • 完了

お客様情報

※「-(ハイフン)」なし7桁の数字

※「-(ハイフン)」なし

お問い合わせ内容

物件名 所在地 お問い合わせ先
リナージュ川西市水明台1丁目01期 リナージュ川西市水明台1丁目01期 兵庫県川西市水明台1丁目7番5(地番) 明石店

アンケート

  • 資料請求を行って頂く前に「個人情報の取り扱いについて」を必ずお読み下さい。
  • GW・夏季休暇・年末年始期間などの休業期間は、ご返信までにお時間を頂く場合がございます。

資料請求する 電話で問い合わせ

近畿の物件を探す

支払い額から購入額と物件を探す

ローンシミュレーション

※世帯年収や月々のお支払い金額の他、詳細な設定条件から、購入可能な物件を検索いただけます。