施工事例 Works

[ キーワード ]

将来を見据えた平屋住宅 茨城県取手市 Kさま

退職を機に、ご自宅の取得を考え始めたK様。
建設地は公共機関や病院、日常のお買い物などに歩いていける場所でじっくり時間をかけて探しました。
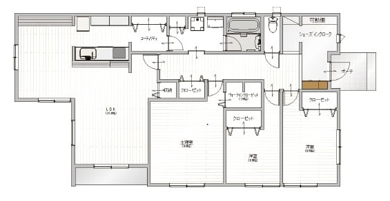
将来、車椅子での生活になった時のことを考え、収納を低い位置に設置したり、廊下を広く取り、車椅子が通りやすくするなど、老後の暮らしを見据えた住まいを設計。
年を重ねても安心して暮らせるバリアフリーの平屋が完成しました。
2面採光で溢れる自然光と白木調木目クロスで明るさを重視したリビング。メンテナンスの楽な人工芝を敷き詰めた庭は、平屋ならではの空の大きな空間を創り出しています。
「立地環境、建物の仕様など大満足のマイホームを手に入れました。」とお話しいただきました。

特徴
パントリー
ウォークインクローゼット
シューズインクローゼット
平屋
面積
敷地面積/267.89㎡(81.03坪)
延床面積/111.37㎡(33.68坪)
施工年月
2022年5月
家族構成
ご夫婦
  • スライダー画像
  • スライダー画像
  • スライダー画像
  • スライダー画像
  • スライダー画像
  • スライダー画像
  • スライダー画像
  • スライダー画像
  • スライダー画像
  • スライダー画像
  • スライダー画像

  • スライダー画像

  • スライダー画像

  • スライダー画像

  • スライダー画像

  • スライダー画像

  • スライダー画像

  • スライダー画像

  • スライダー画像

  • スライダー画像