施工事例 Works

[ キーワード ]

使い勝手にこだわったシンプルな住まい 東京都西東京市 Hさま

住み慣れた土地でご自宅の建て替えを検討されたH様。
収納を多く取り入れ、ものが見えないスッキリとした住みやすいマイホームが完成しました。
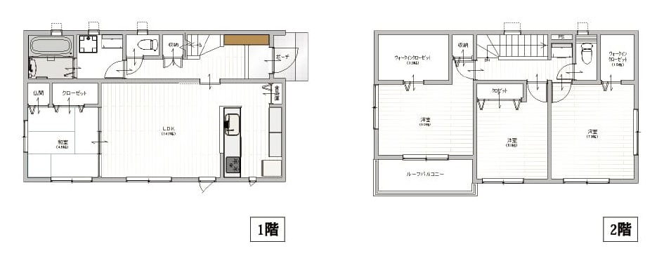
客間としても利用する和室は、代々続く仏壇を置く収納に扉を設け目立たせない工夫が。
LDKは和室まで見通せるストレートタイプ、家族との会話も弾む対面キッチンを採用しました。
お子様のお部屋にはアクセントクロスを採用し、白基調の床材と美しいコントラストが特徴的。3帖のウォークインクローゼットを設け収納力もバツグンです。
「担当者とのきめ細かい打ち合わせにより、希望の予算内で最新の設備を随所に設置することができ、家族それぞれの要望が反映された使い勝手の良い住まいとなりました。」とお話しいただきました。

間取り
4LDK
特徴
和室
パントリー
ウォークインクローゼット
面積
延床面積/100.19㎡(30.30坪)
敷地面積/107.14㎡(32.40坪)
施工年月
2022年10月
家族構成
ご夫婦+子供1人
  • スライダー画像
  • スライダー画像
  • スライダー画像
  • スライダー画像
  • スライダー画像
  • スライダー画像
  • スライダー画像
  • スライダー画像
  • スライダー画像
  • スライダー画像

  • スライダー画像

  • スライダー画像

  • スライダー画像

  • スライダー画像

  • スライダー画像

  • スライダー画像

  • スライダー画像

  • スライダー画像