施工事例
Project Portfolio
アイディホームのリノベーション
安心と技術で理想の住まいを実現
中古住宅の不安を「新築のような快適さ」に変える 「 住まい」の価値は、立地や築年数だけではありません。
アイディホームは、最新の設備と確かな技術で、お客様の暮らしに合わせた理想の空間を創造します。
中古物件をご検討中なら、まずは当社の内装表層フルリノベーションをご覧ください。
安心を支える確かな工事品質
当社のリノベーションは、表面的な美しさだけでなく、耐久性・ 安全性を重視します。
床下の根太や合板、天井の野縁組まで、構造躯体を考慮した適切な下地工事を実施。
お客様に長く、快適に住んでいただくための技術と手間を惜しみません。

1.新築のノウハウが息づく、
確かな品質
中古住宅にありがちな「見えない部分」の不安を、新築事業で培った技術と品質基準で解消します。アイディホーム が、長年住み使われた住まいに価値あるリノベーションをご提供します。

2.プロが手掛けた、
現代の暮らしに合うデザイン
毎年数多くの分譲住宅を手掛ける中で積み上げてきた、現代の家族に人気の間取りや動線のノウハウ。その経験を活かし、元々の間取りの良さを残しつつ、現代のライフスタイルに合わせて的確に間取り変更などを施します。暮らしやすさを考え抜いた、快適な空間をお届けします。
事例紹介
築年数を感じさせない、
モダンで快適な住空間へと生まれ変わりました。
・LDK化による開放的な間取り
・東リLAY フローリング、サンゲツクロス採用
・給湯器:電気温水器を新規交換。

01.LIVING ROOM
安心と美しさを両立した内装
・床:東リ LAY フローリング LFT122 を採用。
・壁・天井:サンゲツ SP9704 のクロスで統一。
・建具:各建具と下駄箱を新規交換。
・窓枠:美しく、機能的に窓枠を塗装(一部交換)。

Before

After

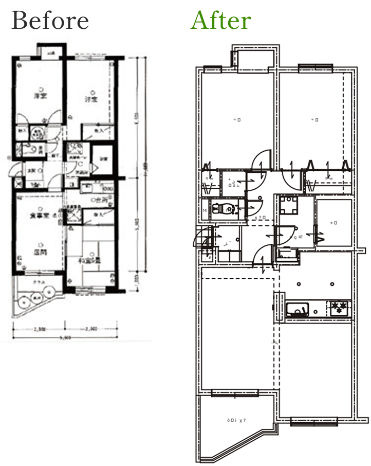
和室を広々LDK に!生活動線と設備を一新した住まい。
専有部分を一新するフルリノベーションを実施!和室をLDK 化することで、より広々とした空間を実現しました。床材、壁・天井クロス、水回り設備まですべて交換し、まるで新築のような快適な暮らしを提供します。

Before

After

02.KITCHEN
最新の設備で快適な生活を
・水回り一式:キッチンを新規交換。
・給湯器:電気温水器を新規交換。

Before

After

Before

After

03.BATHROOM
毎日使う場所だから、最新の「快適」と「清潔」を。
・水回り一式:洗面台、トイレを新規交換。
・その他:洗濯パン、洗濯水栓も交換し、細部までリフレッシュ。

Before

After

Before

After

04.TOILET
トイレ空間の清潔感が格段に向上。
・トイレ床:サンケツべトンタイル(CF)で清潔感をアップ。

Before

After

05.ENTRANCE
住まいの第一印象を格上げ。
毎日を気持ちよくスタートできる、美しい玄関へ。
・玄関:磁器質タイルとソフト巾木で一新。下駄箱交換。

Before

After

06.ROOMS
老朽化した部分は、見えない下地から丁寧にリフレッシュ。
ご家族の安心を守り続けます。

Before

After

便利な機能と安全性の向上
・スイッチ・コンセント:ワイドスイッチとコンセント、分電盤をすべて交換。
・照明:ダウンライトを交換・設置。
・インフラ:TV アンテナ、コンセントを各部屋に設置。インターホン、給排気カバー、煙感知器も新規交換・設置。
Before

After

まるごと一新!
アイディホームの
フルリノベ5つの安心
1.空間一新
和室からLDK への間取り変更など、
生活動線から見直します。
2.水回りフル交換
キッチン、お風呂、洗面台、
トイレまで全て最新設備に交換。
3.電気設備も刷新
ダウンライト、ワイドスイッチ、
分電盤まで一斉交換。安全性と利便性を向上。
4.見えない部分への徹底した配慮
腐食箇所は下地から交換工事を実施。
住まいの安心を確保します。
5.細部まで美しく
各建具の新規交換、窓枠の塗装など、
細部にまでこだわり、 美しく仕上げます。
お住まいのリノベーション
リノベ358W保証パック
『工事費・解体費・処分費+ 瑕疵保険、すべて込み。
坪35.8万円から始めるW保証リノベーション』
※在宅無しの限定価格となります。
W保証パックとは
① 価格保証(下記工事費用+ 該当箇所解体費用+ 該当処分費用)
② 品質保証(リフォーム瑕疵保険付)
※注意事項※下記内容以外は別途となります。
設備機器
キッチン(1セット)・ユニットバス
当社指定品、造作工事、施工代込み、配管、切り回し工事込み、付随する電気・ガス工事
トイレ(2セット)・洗面台(1セット)
当社指定品、施工代、配管切り回し工事込み、付随する電気・ガス工事
洗濯水栓金具、スイッチ・コンセントプレート、ダウンライト、引っかけシーリング、インターホン、給排気レジスター
既設交換工事込み。
内装材
クロス張替工事
既存クロス剥がし、新規クロス工事代込み。※クロスは量産品。
建材
当社指定品(ドア枠、ドア本体、クローゼット枠、クローゼット本体、巾木、窓枠、下駄箱)付随する施工代込み。
フロア上張り工事
フロアタイル(東リ:LAY フローリング)もしくはCF、施工代込み。
その他
・クリーニング ・床下防蟻処理 ・玄関タイル(2㎡以内)
解体撤去
・既存クロス ・既存内装ドア、枠 ・既存クローゼットドア、枠 ・巾木 ・既存窓枠※出窓除く ・下駄箱 ・既存スイッチプレート、コンセントプレート ・既存引っかけシーリング・洗濯水栓金具 ・既存キッチン、ユニットバス1 箇所、洗面台1 台、トイレ2 台 ※在来風呂は除く
リフォーム瑕疵保険
※詳しい保証内容は国土交通省認可の保険法人の契約内容に則る。
あなたの理想の住まい、
あきらめていませんか?
中古物件× アイディホームのリノベーションで、予算内で「理想以上」の暮らしを実現しませんか。
まずは、お気軽にお問い合わせください。
リフォームについての
お問い合わせ
リフォームに関するお問い合わせはこちらよりお願いいたします
- ・リフォームについてのお問い合わせ(全般)
- ・増築工事、間取り変更等のお問い合わせ
- ・増築工事、間取り変更等のお問い合わせ
- ・外構リフォームのお問い合わせ等
- ・先進的窓リノベ(内窓)等のお問い合わせ
担当部署:FS課
tel.03-5335-9918
【電話受付時間】9:00~12:00/13:00~17:30
※年末年始、GW・夏季休暇、日曜を除く
木造在来軸組み工法
内装表層フルリノベーション
坪35.8万円(税抜)~
※在宅無し限定価格
※工事・材料代込み。解体費・処分費込みとなります。
(但しアスベストに係わる処分費は別となります。)
